5 locali in vendita

Lainate, Via Monviso
€ 430.000
4 locali 4 locali
155 Mq 155 Mq
2 bagni 2 bagni

5 locali in vendita

Lainate, Via Monviso

Descrizione annuncio

PROPONIAMO IN VENDITA LUMINOSO ATTICO - CENTRO LAINATE

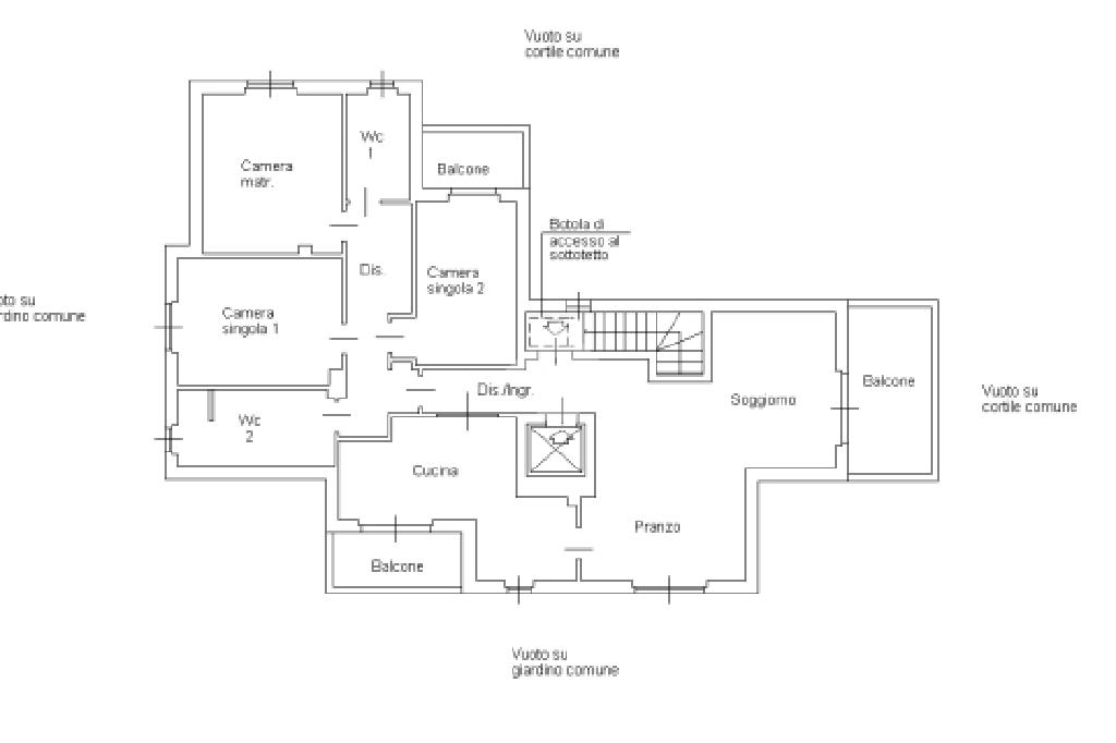
In una tranquilla palazzina di sole sette unità, proponiamo in vendita un ampio ATTICO, servito da ascensore con accesso diretto all'interno dell'abitazione. L'edificio, costruito a fine anni Novanta, è stato recentemente riqualificato con importanti interventi: nuovo tetto con pannelli solari, cappotto termico, caldaia centralizzata sostituita, oltre a infissi e portoncino blindato d'ingresso completamente nuovi.

L'appartamento si presenta in ottime condizioni e si compone di una luminosa zona giorno con affaccio su un terrazzo vivibile con accesso dal soggiorno e due balconi uno ha accesso dalla cucina e l'atro ha accesso dalla cameretta, cucina, tre camere da letto e doppi servizi. Tra le dotazioni troviamo zanzariere su tutte le finestre e porte-finestre, tende da sole e finiture moderne che garantiscono comfort e praticità oltre ad un sistema di aria condizionata canalizzata suddivisa in due zone quella giorno e quella notte.
L'appartamento è completamente gestibile da remoto ( domotica ) per quanto riguarda aria condizionata, riscaldamento, citofono e luci.

Completano la proprietà una cantina, due box singoli compresi nel prezzo - entrambi con basculante elettrica - di cui uno già con la colonnina di ricarica per auto elettriche.

Una soluzione ideale per chi desidera spazi ampi, comodità e qualità costruttiva in un contesto riservato e ben curato.

Per appuntamenti i nostri incaricati sono disponibili dal lunedì al venerdì dalle ore 9.00 alle 12.30 e dalle 14.30 alle 20.00 e il sabato dalle 9.00 alle 12.30 e dalle 14:30 alle 18:00.
a vostra disposizione uno staff di consulenza creditizia in grado di proporvi il mutuo o il finanziamento più adatto alle vostre possibilità. contattateci per fissare un incontro gratuito nei nostri uffici.
ogni agenzia ha un proprio titolare ed è autonoma.

Mostra tutto

Nelle vicinanze

Trasporto pubblico Trasporto pubblico
Trasporto pubblico
480 m
Via Valera - Via Monte Nero (Bariana)
Via Valera - Via Monte Nero (Bariana)
2,0 Km
Ricariche auto elettriche Ricariche auto elettriche
S.H.W STORE
870 m
EnelX EVA+ Lainate
880 m
ISOLA DEI TESORI - LAINATE
940 m
Aumai Market - Lainate
970 m
McDonald's Lainate
990 m
Scuole Scuole
Scuole
530 m
Scuola Media Statale E. Fermi
1,4 Km
Istituto Comprensivo Statale Via Lamarmora
1,5 Km
GEIS Scuola dell'Infanzia Bilingue
2,2 Km
Scuola media Elsa Morante
2,6 Km
Farmacia Farmacia
Farmacia Comunale 2
1,3 Km
Farmacia Comunale
1,4 Km
Iper Farma
1,6 Km
FARMACIA Cuttone
1,8 Km
Ospedali Ospedali
Ospedale "Giuseppe Casati"
2,6 Km
Supermercati Supermercati
Lidl
970 m
Esselunga di Lainate
1,2 Km
Iper Arese
1,6 Km
Conad
2,2 Km
U2
2,3 Km
Negozi Negozi
Pellizzari
1,2 Km
H&M
1,2 Km
Primark
1,2 Km
Zara
1,2 Km
Stradivarius
1,2 Km
Bar Bar
Bar Brescia
790 m
Blue Bar
1,8 Km
Il Caffè degli Artisti
2,3 Km
BlowUp
2,3 Km
Garden Bar
2,6 Km
Ristoranti Ristoranti
McDonald's
990 m
Mensa Centro Direzionale
1,1 Km
All Food
1,1 Km
Il Ninfeo
1,2 Km
Autogrill Villoresi Est
1,2 Km
Mostra tutto

Caratteristiche

Rif.:
61104129
Piano:
3 di 3 con ascensore (Piano attico)
Box:
2
Balconi:
2
Terrazzi:
1
Camere da letto:
3
Mostra tutto
Prezzo Prezzo
€ 430.000
Rata mutuo Rata mutuo
€ 1.988 / mese
Spese annue Spese annue
€ 5.500
Proponi il tuo prezzoProponi il tuo prezzo

Classe Energetica

A2
A2
A2
A2
A2
A2
A2
A2
A2
EP globale non rinnovabile:
53.26 kW h/m² anno
EP invernale del fabbricato:
EP estiva del fabbricato:
Anno di costruzione:
1997
Riscaldamento:
Centralizzato
Tipo impianto:
A radiatori
Tipo alimentazione:
Metano

Ti interessa visionare l'immobile?

Fissa un appuntamento  Fissa un appuntamento

Richiedi informazioni

* Questi campi sono obbligatori

Calcola il tuo mutuo

Semplice e senza impegno
Anticipo

( % )
Mutuo

( % )

pochi semplici passi

inserisci i tuoi dati
Questionario completato
Grazie per aver richiesto un appuntamento senza impegno con un nostro Consulente del Credito e Assicurativo.

Hai inserito correttamente tutti i dati necessari e a breve riceverai una e-mail con un link da convalidare per inviare i tuoi dati.
Affiliato
Immobiliare Litta Sas
Via Re Umberto I°, 2 20020 Lainate (MI)

Il nostro staff


  • Luca Airoldi
    Responsabile

  • Alessandro Sorce
    Affiliato

  • Belinda Sorce
    Coordinatrice

  • Alessandro Chiodega
    Collaboratore

  • Riccardo Colombo
    Collaboratore

  • Davide Di Rosa
    Collaboratore
Via Re Umberto I°, 2 20020 Lainate (MI)
Zona: Lainate-Centro
Mostra su mappa
Orari: DAL LUNEDI' AL VENERDI'09.00-12.30 14.30-20.00 SABATO CHIUSURA 19.00
Affiliato
Immobiliare Litta Sas
Via Re Umberto I°, 2 20020 Lainate (MI)

2025 Tecnocasa Franchising S.p.A. - P. IVA 08365160152 - Via Monte Bianco 60/A 20089 Rozzano (MI). Ogni agenzia ha un proprio titolare ed è autonoma. Privacy policy | Policy utilizzo | Cookie policy