Trilocale in vendita

Lainate, Vicolo Piave
€ 118.000
3 locali 3 locali
95 Mq 95 Mq
1 bagno 1 bagno

Trilocale in vendita

Lainate, Vicolo Piave

Descrizione annuncio

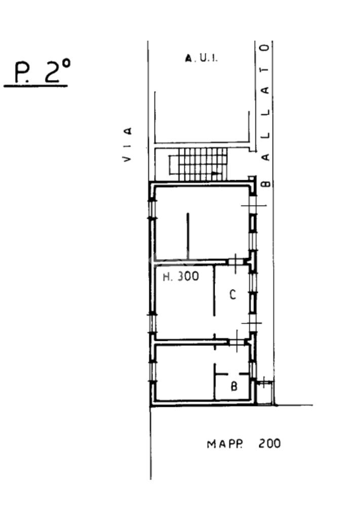
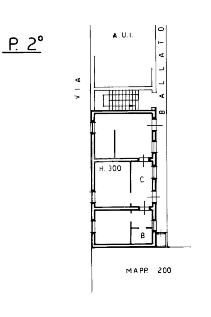
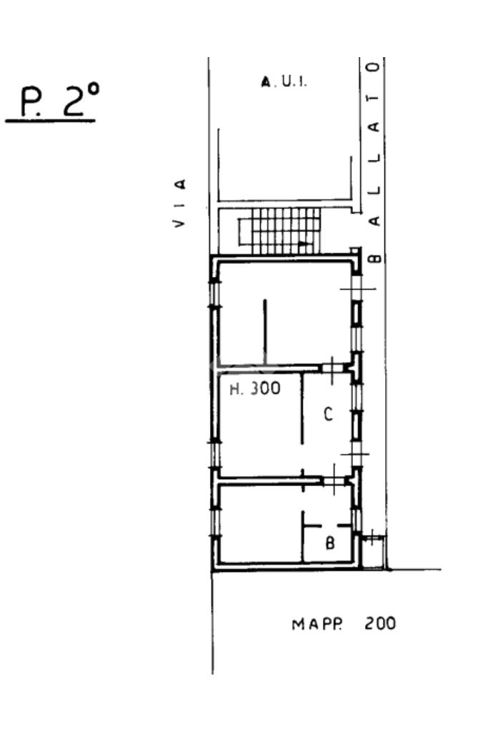
Proponiamo in vendita a Lainate, in contesto tranquillo e ben servito, ampio trilocale situato al secondo piano di una palazzina senza ascensore. L’appartamento rappresenta una soluzione ideale per famiglie, giovani coppie o per chi desidera personalizzare gli spazi secondo il proprio gusto, grazie alla possibilità di ristrutturazione.

L’ingresso conduce a un luminoso soggiorno, ambiente accogliente e ben distribuito, perfetto per momenti di relax e convivialità. La cucina è abitabile, separata dal soggiorno, con spazio sufficiente per ospitare un tavolo da pranzo e creare un ambiente funzionale e pratico per la vita quotidiana.

La zona notte è composta da due camere da letto di generose dimensioni, facilmente arredabili e adatte sia come camera matrimoniale sia come cameretta, studio o stanza per gli ospiti. Il bagno è finestrato, caratteristica che garantisce una piacevole illuminazione naturale e un’ottima aerazione.

L’immobile si presenta parzialmente da ristrutturare, offrendo così l’opportunità di valorizzarlo e adattarlo alle proprie esigenze abitative o di investimento. Gli spazi interni risultano ben distribuiti e facilmente personalizzabili, permettendo diverse soluzioni progettuali.

La posizione è strategica, comoda con i principali servizi, scuole, negozi e collegamenti stradali, rendendo l’abitazione pratica per gli spostamenti quotidiani. Questa proposta rappresenta un’interessante opportunità per chi è alla ricerca di un appartamento con buone metrature, in una zona residenziale tranquilla, con il vantaggio di poter intervenire con lavori di ammodernamento per aumentare il valore e il comfort dell’immobile.

Le informazioni contenute sono puramente indicative e non costituiscono elementi contrattuali.

Per appuntamenti i nostri incaricati sono disponibili dal lunedì al venerdì dalle ore 9.00 alle 12.30 e dalle 14.30 alle 20.00 e il sabato dalle 9.00 alle 12.30 e dalle 14:30 alle 18:00.
a vostra disposizione uno staff di consulenza creditizia in grado di proporvi il mutuo o il finanziamento più adatto alle vostre possibilità. Contattateci per fissare un incontro gratuito nei nostri uffici.
Ogni agenzia ha un proprio titolare ed è autonoma.

Mostra tutto

Nelle vicinanze

Trasporto pubblico Trasporto pubblico
Trasporto pubblico
380 m
ORI_16 - Via Per la Muschiona 35;OR004 - Cascina Muschiona
ORI_16 - Via Per la Muschiona 35;OR004 - Cascina Muschiona
1,6 Km
Ricariche auto elettriche Ricariche auto elettriche
S.H.W STORE
1,2 Km
ISOLA DEI TESORI - LAINATE
1,3 Km
McDonald's Lainate
1,3 Km
LIDL Lainate
1,4 Km
Aumai Market - Lainate
1,4 Km
Scuole Scuole
Scuole
430 m
Scuola Media Statale E. Fermi
500 m
Istituto Comprensivo Statale Via Lamarmora
580 m
Scuola Primaria Alessandro Manzoni
2,5 Km
Scuola Primaria Sant'Alessandro
2,8 Km
Farmacia Farmacia
Farmacia Comunale 2
360 m
FARMACIA Cuttone
2,3 Km
Farmacia Comunale
2,3 Km
Iper Farma
2,5 Km
Farmacia Galbiati
2,8 Km
Supermercati Supermercati
Esselunga di Lainate
270 m
Lidl
1,4 Km
Conad
2,2 Km
Tigros
2,4 Km
Iper Arese
2,5 Km
Negozi Negozi
Pellizzari
2,1 Km
H&M
2,1 Km
Primark
2,1 Km
Zara
2,1 Km
Stradivarius
2,2 Km
Bar Bar
Bar Brescia
300 m
Il Caffè degli Artisti
2,2 Km
BlowUp
2,3 Km
Blue Bar
2,5 Km
Myth pub
2,7 Km
Ristoranti Ristoranti
Cascina Malingamba
1,2 Km
Mensa Centro Direzionale
1,3 Km
McDonald's
1,3 Km
All Food
1,3 Km
Il Ninfeo
1,5 Km
Mostra tutto

Caratteristiche

Rif.:
61179970
Piano:
2 di 2 (Piano alto)
Balconi:
1
Camere da letto:
2
Arredamento:
Assente
Condizionamento:
Assente
Mostra tutto
Prezzo Prezzo
€ 118.000
Rata mutuo Rata mutuo
€ 561 / mese
Spese annue Spese annue
€ 700
Proponi il tuo prezzoProponi il tuo prezzo

Classe Energetica

G
G
G
G
G
G
G
G
G
EP globale non rinnovabile:
400.00 kW h/m² anno
EP invernale del fabbricato:
EP estiva del fabbricato:
Anno di costruzione:
1960
Riscaldamento:
Autonomo
Tipo impianto:
A radiatori
Tipo alimentazione:
Metano

Ti interessa visionare l'immobile?

Fissa un appuntamento  Fissa un appuntamento

Richiedi informazioni

Clicca su Leggi per aprire l'informativa
* Questi campi sono obbligatori

Calcola il tuo mutuo

Semplice e senza impegno
Anticipo

( % )
Mutuo

( % )

pochi semplici passi

inserisci i tuoi dati
Questionario completato
Grazie per aver richiesto un appuntamento senza impegno con un nostro Consulente del Credito e Assicurativo.

Hai inserito correttamente tutti i dati necessari e a breve riceverai una e-mail con un link da convalidare per inviare i tuoi dati.
Affiliato
Immobiliare Litta Sas
Via Re Umberto I°, 2 20020 Lainate (MI)

Il nostro staff


  • Luca Airoldi
    Responsabile

  • Alessandro Sorce
    Affiliato

  • Belinda Sorce
    Coordinatrice

  • Riccardo Colombo
    Collaboratore

  • Davide Di Rosa
    Collaboratore
Via Re Umberto I°, 2 20020 Lainate (MI)
Zona: Lainate-Centro
Mostra su mappa
Orari: DAL LUNEDI' AL VENERDI'09.00-12.30 14.30-20.00 SABATO CHIUSURA 19.00
Affiliato
Immobiliare Litta Sas
Via Re Umberto I°, 2 20020 Lainate (MI)

2026 Tecnocasa Franchising S.p.A. - P. IVA 08365160152 - Via Monte Bianco 60/A 20089 Rozzano (MI). Ogni agenzia ha un proprio titolare ed è autonoma. Privacy policy | Policy utilizzo | Cookie policy