Porzione di bifamiliare in vendita

Lainate, Via Brambilla il Giovane
€ 710.000
5 locali 5 locali
210 Mq 210 Mq
3 bagni 3 bagni

Porzione di bifamiliare in vendita

Lainate, Via Brambilla il Giovane

Descrizione annuncio

In una delle aree più prestigiose e riservate di Lainate, proponiamo in vendita una splendida porzione di villa, immersa nel verde e circondata da un contesto di assoluta tranquillità.

La soluzione si sviluppa su più livelli e offre ambienti ampi, luminosi e ben L'abitazione nasce come tre locali, con cucina a vista, trasformata in cucina abitabile. Mentre al piano primo c'è la possibilità di poter collegare l'abitazione tramite la scala interna oppure di creare una scala esterna una seconda abitazione ovvero un bilocale con terrazzo di 40 Mq.
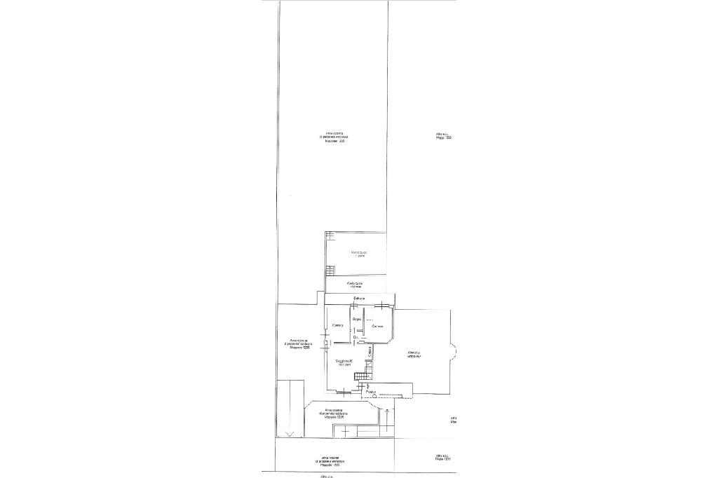
Piano Terra

All'ingresso troviamo un ampio portico coperto, ideale per pranzi all'aperto, momenti di relax o come spazio aggiuntivo da vivere nelle stagioni più miti.

L'interno si apre su una zona giorno generosa, composta da un soggiorno spazioso, una cucina abitabile, un bagno finestrato e una camera matrimoniale di ottime dimensioni. Tutti i locali presenti sono dotati di una porta/finestra che da l'accesso diretto all'area esterna

Piano Seminterrato
Un livello dedicato al tempo libero e alla funzionalità, con una grande taverna/hobby room, perfetta per attività ricreative o come zona relax, oltre ad uno spazio adibito a zona pranzo con cucina. È presente anche una comoda lavanderia.

Piano Primo
Qui troviamo un ampio locale openspace, versatile e ideale anche come terza camera o la possibilità di ricavare un bilocale, un bagno finestrato e un terrazzo vivibile, perfetto per godersi momenti all'aperto in totale privacy.

Esterni e accessori
Completa la proprietà un box doppio in larghezza e una generosa area esterna di circa 800 mq, un'oasi verde privata perfetta per chi ama vivere all'aperto, fare giardinaggio o creare uno spazio con piscina o area giochi.

Inoltre c'è possibilità di potersi rialzare di un ulteriore piano grazie alla cubatura residua che lo permette

Una casa ideale per chi cerca comfort, privacy e ampi spazi in una delle zone più esclusive di Lainate.

Contattaci per maggiori informazioni o per prenotare una visita.

Le informazioni contenute sono puramente indicative e non costituiscono elementi contrattuali.
Per appuntamenti i nostri incaricati sono disponibili dal lunedì al venerdì dalle ore 9.00 alle 12.30 e dalle 14.30 alle 20.00 e il sabato dalle 9.00 alle 12.30 e dalle 14:30 alle 18:00.
a vostra disposizione uno staff di consulenza creditizia in grado di proporvi il mutuo o il finanziamento più adatto alle vostre possibilità. contattateci per fissare un incontro gratuito nei nostri uffici.
ogni agenzia ha un proprio titolare ed è autonoma.

Mostra tutto

Nelle vicinanze

Trasporto pubblico Trasporto pubblico
Trasporto pubblico
480 m
ORI_16 - Via Per la Muschiona 35;OR004 - Cascina Muschiona
ORI_16 - Via Per la Muschiona 35;OR004 - Cascina Muschiona
760 m
Ricariche auto elettriche Ricariche auto elettriche
Origgio XXV Aprile | EnelX
1,5 Km
Origgio Cantalupo | EnelX
1,6 Km
Studio Dottor Maurizio Pedone - Clinica Amicodentista
1,9 Km
Origgio Repubblica | EnelX
2,0 Km
S.H.W STORE
2,1 Km
Scuole Scuole
Istituto Comprensivo Statale Via Lamarmora
470 m
Scuola Media Statale E. Fermi
710 m
Scuole
1,3 Km
Scuola Primaria Alessandro Manzoni
1,7 Km
Scuola Secondaria di Primo Grado Giovanni Schiaparelli
2,0 Km
Farmacia Farmacia
Farmacia Comunale 2
520 m
Farmacia Galbiati
2,0 Km
Farmacia San Giorgio
2,1 Km
Supermercati Supermercati
Esselunga di Lainate
590 m
Lidl
2,2 Km
Tigros
2,3 Km
Conad
2,8 Km
Negozi Negozi
Alle Cascine
1,8 Km
Negozi
1,9 Km
Dal Prestine
2,0 Km
L'angolo del Gusto
2,0 Km
Preca Brummel S.P.A.
2,3 Km
Bar Bar
Bar Brescia
1,1 Km
Bar
2,0 Km
Il Caffè degli Artisti
2,8 Km
Myth pub
2,8 Km
BlowUp
2,9 Km
Ristoranti Ristoranti
Cascina Malingamba
390 m
Pizzeria La Favola
1,7 Km
Bar Trattoria Pizzeria I tre porcellini
1,8 Km
Ristoranti
1,8 Km
Pizzeria da Pachito
1,9 Km
Mostra tutto

Caratteristiche

Rif.:
61124508
Piano:
2 di 3 (Piano su più livelli)
Box:
2
Posti auto:
1
Balconi:
1
Terrazzi:
1
Mostra tutto
Prezzo Prezzo
€ 710.000
Rata mutuo Rata mutuo
€ 3.348 / mese
Spese annue Spese annue
€ 200
Proponi il tuo prezzoProponi il tuo prezzo

Classe Energetica

G
G
G
G
G
G
G
G
G
EP globale non rinnovabile:
265.69 kW h/m² anno
EP invernale del fabbricato:
EP estiva del fabbricato:
Anno di costruzione:
2005
Riscaldamento:
Autonomo
Tipo impianto:
A radiatori
Tipo alimentazione:
Metano

Ti interessa visionare l'immobile?

Fissa un appuntamento  Fissa un appuntamento

Richiedi informazioni

Clicca su Leggi per aprire l'informativa
* Questi campi sono obbligatori

Calcola il tuo mutuo

Semplice e senza impegno
Anticipo

( % )
Mutuo

( % )

pochi semplici passi

inserisci i tuoi dati
Questionario completato
Grazie per aver richiesto un appuntamento senza impegno con un nostro Consulente del Credito e Assicurativo.

Hai inserito correttamente tutti i dati necessari e a breve riceverai una e-mail con un link da convalidare per inviare i tuoi dati.
Affiliato
Immobiliare Litta Sas
Via Re Umberto I°, 2 20020 Lainate (MI)

Il nostro staff


  • Luca Airoldi
    Responsabile

  • Alessandro Sorce
    Affiliato

  • Belinda Sorce
    Coordinatrice

  • Alessandro Chiodega
    Collaboratore

  • Riccardo Colombo
    Collaboratore

  • Davide Di Rosa
    Collaboratore
Via Re Umberto I°, 2 20020 Lainate (MI)
Zona: Lainate-Centro
Mostra su mappa
Orari: DAL LUNEDI' AL VENERDI'09.00-12.30 14.30-20.00 SABATO CHIUSURA 19.00
Affiliato
Immobiliare Litta Sas
Via Re Umberto I°, 2 20020 Lainate (MI)

2025 Tecnocasa Franchising S.p.A. - P. IVA 08365160152 - Via Monte Bianco 60/A 20089 Rozzano (MI). Ogni agenzia ha un proprio titolare ed è autonoma. Privacy policy | Policy utilizzo | Cookie policy